Trilocale in vendita

Milano, Via Aleardo Aleardi - Canonica
€ 510.000
3 locali 3 locali
87 Mq 87 Mq
1 bagno 1 bagno

Trilocale in vendita

Milano, Via Aleardo Aleardi - Canonica

Descrizione annuncio

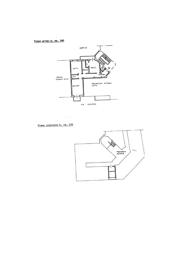
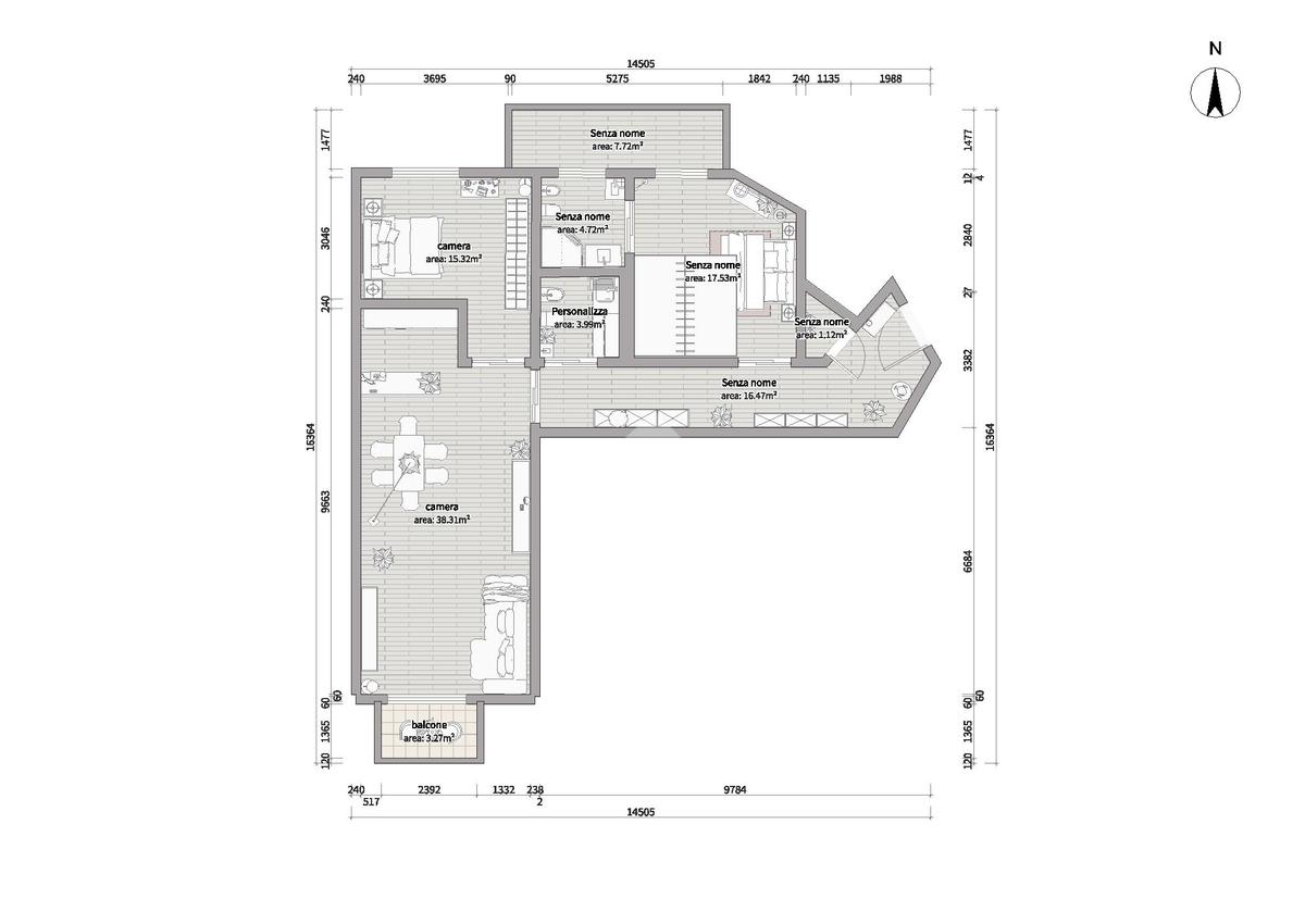
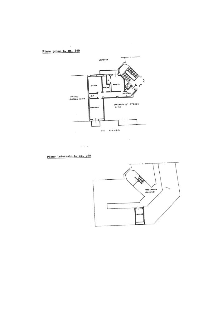
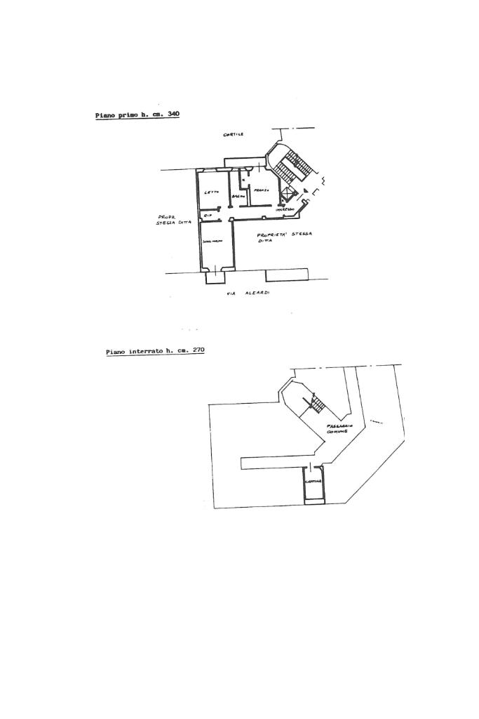
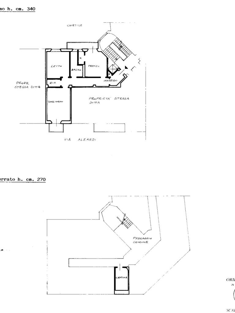
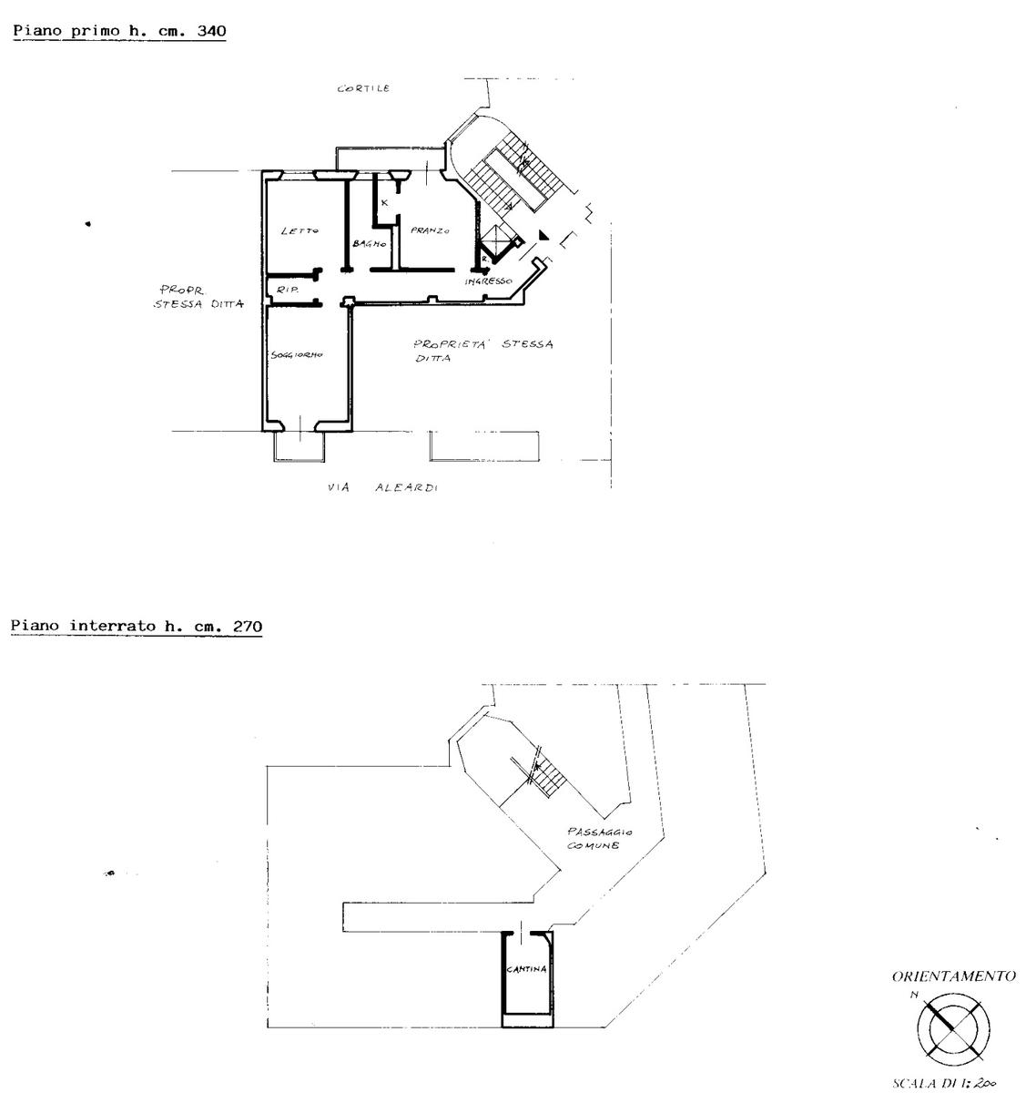
Via Aleardo Aleardi - Proponiamo in vendita un appartamento di tre locali con doppi balconi e ripostiglio.

Inserito al primo piano di in un meraviglioso stabile signorile con servizio di ascensore, in una delle zone più affascinanti di Milano, questo appartamento di tre locali con doppio affaccio, due balconi e ripostiglio, offre un'opportunità unica per chi desidera personalizzare il proprio spazio abitativo. Completa la proprietà una comoda cantina di pertinenza.

La posizione è strategica: a pochi passi da Paolo Sarpi, dall'Arco della Pace e dalla vivace area di Moscova, dove potrai godere di ristoranti, caffè e negozi di ogni genere. Nonostante la centralità, l'appartamento garantisce un'atmosfera tranquilla e riservata.

L'immobile necessita di ristrutturazione, offrendo così l'opportunità di progettare gli spazi secondo le proprie esigenze e gusti. Non perdere l'occasione di trasformare questo spazio in un elegante rifugio nel cuore di Milano.

Contattaci per maggiori informazioni e per organizzare una visita!

Mostra tutto

Nelle vicinanze

Trasporto pubblico Trasporto pubblico
Cenisio
Cenisio
490 m
Gerusalemme
Gerusalemme
530 m
Milano Porta Garibaldi passante
Milano Porta Garibaldi passante
1,1 Km
Milano Porta Garibaldi superficie
Milano Porta Garibaldi superficie
1,1 Km
Via Procaccini Via Lomazzo
Via Procaccini Via Lomazzo
180 m
Ricariche auto elettriche Ricariche auto elettriche
Hotel Viu Milano
350 m
Green Park
390 m
AUTORIMESSA SEMPIONE 76
540 m
Una Hotel Scandinavia
750 m
BECHARGE Milano Salvioni
1,0 Km
Scuole Scuole
Scuola Superiore d'Arte Applicata del Castello Sforzesco
380 m
Scuola primaria Ferrante Aporti
400 m
Istituto Regina Carmeli
410 m
Scuola Secondaria di Primo Grado Moscati-Mameli
410 m
Scuola Secondaria di Primo Grado Panzini
440 m
Farmacia Farmacia
Farmacia Procaccini
210 m
Farmacia
240 m
Mariscotti
300 m
Farmacia Farinatti
470 m
Canonica
480 m
Ospedali Ospedali
Ospedale dei Bambini "Vittore Buzzi"
560 m
Fatebenefratelli
1,5 Km
Istituto Clinico Sant'Ambrogio
1,5 Km
Clinica Columbus
1,8 Km
Ospedale FieraMilano
1,8 Km
Supermercati Supermercati
Auchan
350 m
Carrefour Market
350 m
Kathay
380 m
Esselunga
680 m
My Auchan
690 m
Negozi Negozi
Pivert Store
190 m
Negozi
220 m
BBM Boutique
220 m
Carrefour Express
230 m
MiniMarket 53
310 m
Bar Bar
XXI Secolo
220 m
Milano Cafè
250 m
Frère
270 m
Recreo Bar Sartoria
280 m
Cantine Isola
300 m
Ristoranti Ristoranti
Il Santo Bevitore
20 m
Pupurry
30 m
Quadrifoglio
70 m
Biofficina
120 m
Ramen a Mano
130 m
Mostra tutto

Caratteristiche

Rif.:
61121697
Piano:
1 di 4 con ascensore (Piano basso)
Balconi:
2
Camere da letto:
2
Arredamento:
Assente
Condizionamento:
Assente
Mostra tutto
Prezzo Prezzo
€ 510.000
Rata mutuo Rata mutuo
€ 2.351 / mese
Spese annue Spese annue
€ 2.000
Proponi il tuo prezzoProponi il tuo prezzo

Classe Energetica

G
G
G
G
G
G
G
G
G
EP globale non rinnovabile:
159.78 kW h/m² anno
EP invernale del fabbricato:
EP estiva del fabbricato:
Anno di costruzione:
1950
Riscaldamento:
Centralizzato
Tipo impianto:
A radiatori
Tipo alimentazione:
Metano

Ti interessa visionare l'immobile?

Fissa un appuntamento  Fissa un appuntamento

Richiedi informazioni

* Questi campi sono obbligatori

Calcola il tuo mutuo

Semplice e senza impegno
Anticipo

( % )
Mutuo

( % )

pochi semplici passi

inserisci i tuoi dati
Questionario completato
Grazie per aver richiesto un appuntamento senza impegno con un nostro Consulente del Credito e Assicurativo.

Hai inserito correttamente tutti i dati necessari e a breve riceverai una e-mail con un link da convalidare per inviare i tuoi dati.
Affiliato
Immobiliare Mi.ca Sas
Via Albertini, 2 20154 Milano (MI)

Il nostro staff


  • Flavio Giacalone
    Affiliato

  • Davide Benedetto Ernesto Miceli
    Responsabile
Via Albertini, 2 20154 Milano (MI)
Zona: Canonica - Sarpi
Mostra su mappa
Orari: lunedì - venerdì 09.00 - 13.00 / 14.30 - 20.00 sabato 09.30 - 13.00
Affiliato
Immobiliare Mi.ca Sas
Via Albertini, 2 20154 Milano (MI)

2025 Tecnocasa Franchising S.p.A. - P. IVA 08365160152 - Via Monte Bianco 60/A 20089 Rozzano (MI). Ogni agenzia ha un proprio titolare ed è autonoma. Privacy policy | Policy utilizzo | Cookie policy