Bilocale in vendita

Milano, Via Paolo Sarpi - Sarpi
€ 390.000
2 locali 2 locali
63 Mq 63 Mq
1 bagno 1 bagno

Bilocale in vendita

Milano, Via Paolo Sarpi - Sarpi

Descrizione annuncio

In una delle zone più ricercate di Milano, nel quartiere di via Paolo Sarpi, proponiamo in vendita un luminoso bilocale all'interno di Sarpi 8, un elegante complesso residenziale ottocentesco frutto di un intervento di riqualificazione architettonica. Il civico 8 di via Paolo Sarpi si contraddistinge per la posizione tranquilla e riservata grazie alla posizione interna in cui sorge il complesso, accessibile da un vicolo cieco.

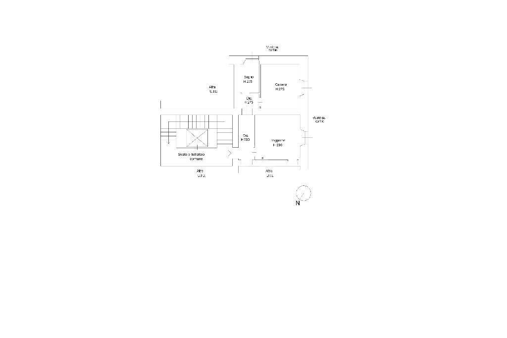
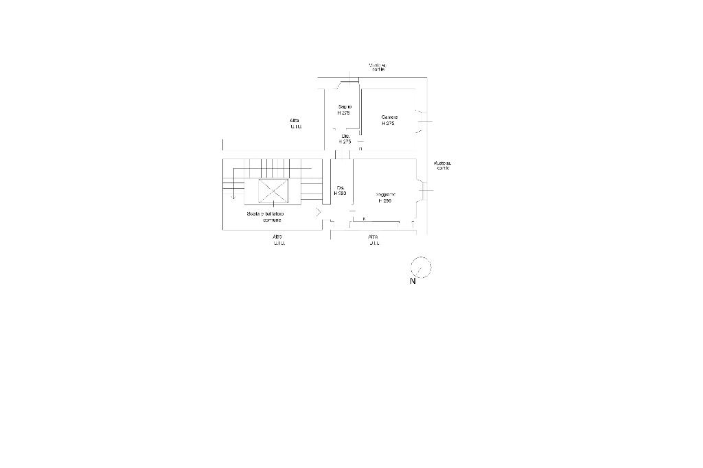
La soluzione è posta al secondo piano ed così composta: soggiorno, camera matrimoniale e bagno finestrato.

L'immobile si distingue per la sua eccellente luminosità grazie alla doppia esposizione. La luce naturale crea in tutti gli ambienti un'atmosfera calda e accogliente per tutta la giornata.

La soluzione è completamente da ristrutturare, ideale per chi desidera personalizzare gli spazi secondo le proprie esigenze.

Mostra tutto

Nelle vicinanze

Trasporto pubblico Trasporto pubblico
Monumentale
Monumentale
380 m
Moscova
Moscova
630 m
Milano Porta Garibaldi passante
Milano Porta Garibaldi passante
580 m
Milano Porta Garibaldi superficie
Milano Porta Garibaldi superficie
650 m
Via Bramante Via Sarpi
Via Bramante Via Sarpi
70 m
Ricariche auto elettriche Ricariche auto elettriche
Hotel Viu Milano
230 m
A2A Isola Digitale Corso Como - Porta Garibaldi
460 m
A2A Volta
490 m
BeCharge Milano Gae Aulenti
760 m
NH Palazzo Moscova
820 m
Scuole Scuole
I.T.C. Carlo Tenca
280 m
Liceo Carlo Tenca
300 m
Scuola Primaria Giusti
310 m
Scuola Secondaria di Primo Grado Panzini
320 m
Centro di Formazione Professionale - Rete Ferroviaria Italiana
510 m
Farmacia Farmacia
Farmacia
80 m
Farmacia Giannone
250 m
Farmacia Garibaldi
420 m
Canonica
530 m
Raimondi
530 m
Ospedali Ospedali
Fatebenefratelli
940 m
Ospedale dei Bambini "Vittore Buzzi"
1,1 Km
Humanitas San Pio X
1,6 Km
Poliambulatorio Sassi
1,8 Km
Istituto Villa Marelli
2,0 Km
Supermercati Supermercati
My Auchan
170 m
Naturasì
280 m
Punto Simply
460 m
Superpolo
510 m
u! express
590 m
Negozi Negozi
Negozi
20 m
New Star Fashion
20 m
Hua Li Moda
20 m
Xing Long Moda
30 m
Day Star
30 m
Bar Bar
oTTo
20 m
Circolo ex Combattenti e Reduci
140 m
Ceresio 7
190 m
Cantine Isola
300 m
Melabevo
340 m
Ristoranti Ristoranti
Jubin
40 m
Dong Ya
40 m
Little Lamb
60 m
Trattoria Cinese
110 m
Ha Long Bay
130 m
Mostra tutto

Caratteristiche

Rif.:
61126800
Piano:
2 di 3 con ascensore (Piano basso)
Camere da letto:
1
Arredamento:
Assente
Condizionamento:
Assente
Ascensore:
Mostra tutto
Prezzo Prezzo
€ 390.000
Rata mutuo Rata mutuo
€ 1.798 / mese
Spese annue Spese annue
€ 2.000
Proponi il tuo prezzoProponi il tuo prezzo

Classe Energetica

F
F
F
F
F
F
F
F
F
EP globale non rinnovabile:
125.68 kW h/m² anno
Anno di costruzione:
1900
Riscaldamento:
Centralizzato
Tipo impianto:
A radiatori
Tipo alimentazione:
Metano

Ti interessa visionare l'immobile?

Fissa un appuntamento  Fissa un appuntamento

Richiedi informazioni

* Questi campi sono obbligatori

Calcola il tuo mutuo

Semplice e senza impegno
Anticipo

( % )
Mutuo

( % )

pochi semplici passi

inserisci i tuoi dati
Questionario completato
Grazie per aver richiesto un appuntamento senza impegno con un nostro Consulente del Credito e Assicurativo.

Hai inserito correttamente tutti i dati necessari e a breve riceverai una e-mail con un link da convalidare per inviare i tuoi dati.
Affiliato
Immobiliare Mi.ca Sas
Via Albertini, 2 20154 Milano (MI)

Il nostro staff


  • Flavio Giacalone
    Affiliato

  • Davide Benedetto Ernesto Miceli
    Responsabile
Via Albertini, 2 20154 Milano (MI)
Zona: Canonica - Sarpi
Mostra su mappa
Orari: lunedì - venerdì 09.00 - 13.00 / 14.30 - 20.00 sabato 09.30 - 13.00
Affiliato
Immobiliare Mi.ca Sas
Via Albertini, 2 20154 Milano (MI)

2025 Tecnocasa Franchising S.p.A. - P. IVA 08365160152 - Via Monte Bianco 60/A 20089 Rozzano (MI). Ogni agenzia ha un proprio titolare ed è autonoma. Privacy policy | Policy utilizzo | Cookie policy