Attico in vendita

Milano, Corso Sempione - Arco Della Pace
€ 720.000
84 Mq 84 Mq
2 bagni 2 bagni

Attico in vendita

Milano, Corso Sempione - Arco Della Pace

Descrizione annuncio

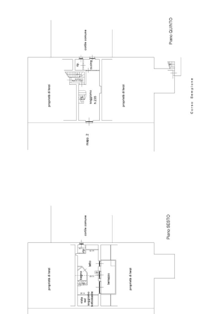
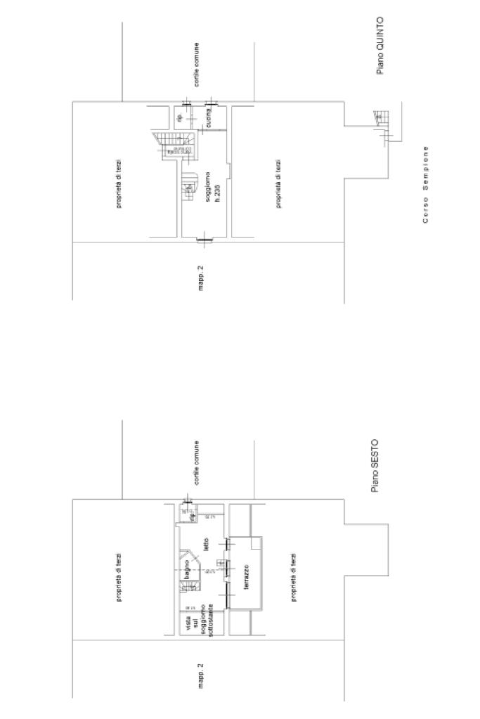
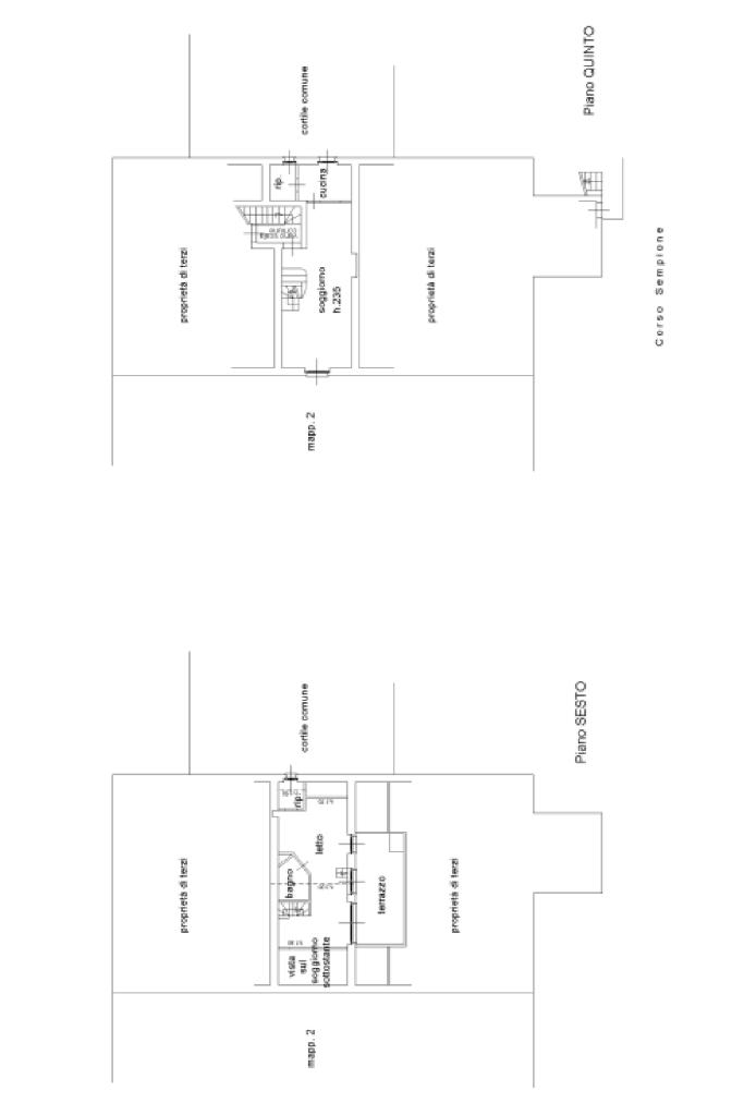
A due passi dall'Arco della Pace, all'interno di un palazzo d'epoca con servizio di portineria full-time, proponiamo in vendita un esclusiva soluzione, trasformabile in trilocale, disposta su due livellli (quinto e sesto piano), ideale per chi cerca charme, riservatezza e comodità in una delle zone più ambita di Milano. L'ingresso si apre sul luminoso soggiorno al quinto piano, con cucina separata e un pratico bagno di scala a chiocciola coduce al piano superiore dove troviamo una spaziosa e luminosa camera matrimoniale con bagno en-suite, dotato di vasca idromassaggio, perfetto per i momenti di relax. Completa la proprietà un terrazzo di circa 15 mq, accessibile direttamente dalla camera da letto tramite una seconda scala interna. Una residenza unaca nel suo genere, perfetta per vivere Milano con stile.

L'immobile è collocato in una delle vie più dinamiche e multiculturali di Milano, con una vasta gamma di negozi, ristoranti e caffetterie che riflettono l'eclettica atmosfera della zona. Grazie alla sua posizione centrale, potrai raggiungere facilmente i principali punti di interesse della città, più di una stazione della metropolitana (MM5Monumentale e MM2 Moscova) e le principali vie di comunicazione.

Mostra tutto

Nelle vicinanze

Trasporto pubblico Trasporto pubblico
Domodossola
Domodossola
770 m
Gerusalemme
Gerusalemme
810 m
Milano Nord Cadorna
Milano Nord Cadorna
1,1 Km
Milano Porta Garibaldi passante
Milano Porta Garibaldi passante
1,5 Km
Corso Sempione Via Canova
Corso Sempione Via Canova
90 m
Ricariche auto elettriche Ricariche auto elettriche
Green Park
460 m
AUTORIMESSA SEMPIONE 76
580 m
A2A Fiera Est
760 m
Hotel Viu Milano
840 m
Una Hotel Scandinavia
990 m
Scuole Scuole
Scuola Primaria Piero Moscati Bianca Maria Sforza
210 m
Istituto Daniele Marignoni Marco Polo
240 m
Scuola Superiore d'Arte Applicata del Castello Sforzesco
330 m
liceo classico Cesare Beccaria
490 m
Scuola secondaria di primo grado Moscati-Mameli
520 m
Farmacia Farmacia
Farmacia Sempione
120 m
Società Cooperativa Farmaceutica
200 m
Canonica
370 m
Mariscotti
380 m
Farmacia
440 m
Ospedali Ospedali
Ospedale dei Bambini "Vittore Buzzi"
950 m
Poliambulatorio Sassi
1,2 Km
Clinica Columbus
1,2 Km
Istituto Clinico Sant'Ambrogio
1,5 Km
Ospedale San Giuseppe
1,6 Km
Supermercati Supermercati
Auchan
310 m
Kathay
310 m
Carrefour Market
410 m
Punto Simply
650 m
Simply Market City
670 m
Negozi Negozi
To.Market
80 m
Emporio l'Isola
270 m
Lirecento
300 m
Bio c'bon
310 m
Carrefour Express
340 m
Bar Bar
Bomaki
50 m
Bada Boom
60 m
Jazz Cafè
70 m
Kitsch Bar
110 m
Cream Lounge
140 m
Ristoranti Ristoranti
La Taverna dei Golosi
10 m
Poku Poke Place
20 m
Ama.mi
60 m
Milano 1979
90 m
Bottega Ghiotta
100 m
Mostra tutto

Caratteristiche

Rif.:
61154341
Piano:
5 di 6 con ascensore (Piano alto)
Terrazzi:
1
Camere da letto:
1
Arredamento:
Assente
Condizionamento:
Autonomo
Mostra tutto
Prezzo Prezzo
€ 720.000
Rata mutuo Rata mutuo
€ 3.393 / mese
Spese annue Spese annue
€ 3.480
Proponi il tuo prezzoProponi il tuo prezzo

Classe Energetica

F
F
F
F
F
F
F
F
F
EP globale non rinnovabile:
256.19 kW h/m² anno
EP invernale del fabbricato:
EP estiva del fabbricato:
Anno di costruzione:
1900
Riscaldamento:
Centralizzato
Tipo impianto:
A radiatori
Tipo alimentazione:
Metano

Ti interessa visionare l'immobile?

Fissa un appuntamento  Fissa un appuntamento

Richiedi informazioni

Clicca su Leggi per aprire l'informativa
* Questi campi sono obbligatori

Calcola il tuo mutuo

Semplice e senza impegno
Anticipo

( % )
Mutuo

( % )

pochi semplici passi

inserisci i tuoi dati
Questionario completato
Grazie per aver richiesto un appuntamento senza impegno con un nostro Consulente del Credito e Assicurativo.

Hai inserito correttamente tutti i dati necessari e a breve riceverai una e-mail con un link da convalidare per inviare i tuoi dati.
Affiliato
Immobiliare Mi.ca Sas
Via Albertini, 2 20154 Milano (MI)

Il nostro staff


  • Flavio Giacalone
    Affiliato

  • Davide Benedetto Ernesto Miceli
    Responsabile
Via Albertini, 2 20154 Milano (MI)
Zona: Canonica - Sarpi
Mostra su mappa
Orari: lunedì - venerdì 09.00 - 13.00 / 14.30 - 20.00 sabato 09.30 - 13.00
Affiliato
Immobiliare Mi.ca Sas
Via Albertini, 2 20154 Milano (MI)

2026 Tecnocasa Franchising S.p.A. - P. IVA 08365160152 - Via Monte Bianco 60/A 20089 Rozzano (MI). Ogni agenzia ha un proprio titolare ed è autonoma. Privacy policy | Policy utilizzo | Cookie policy