Trilocale in vendita

Milano, Via Cenisio - Cenisio
€ 580.000
Prezzo aggiornato
3 locali 3 locali
82 Mq 82 Mq
2 bagni 2 bagni

Trilocale in vendita

Milano, Via Cenisio - Cenisio

Descrizione annuncio

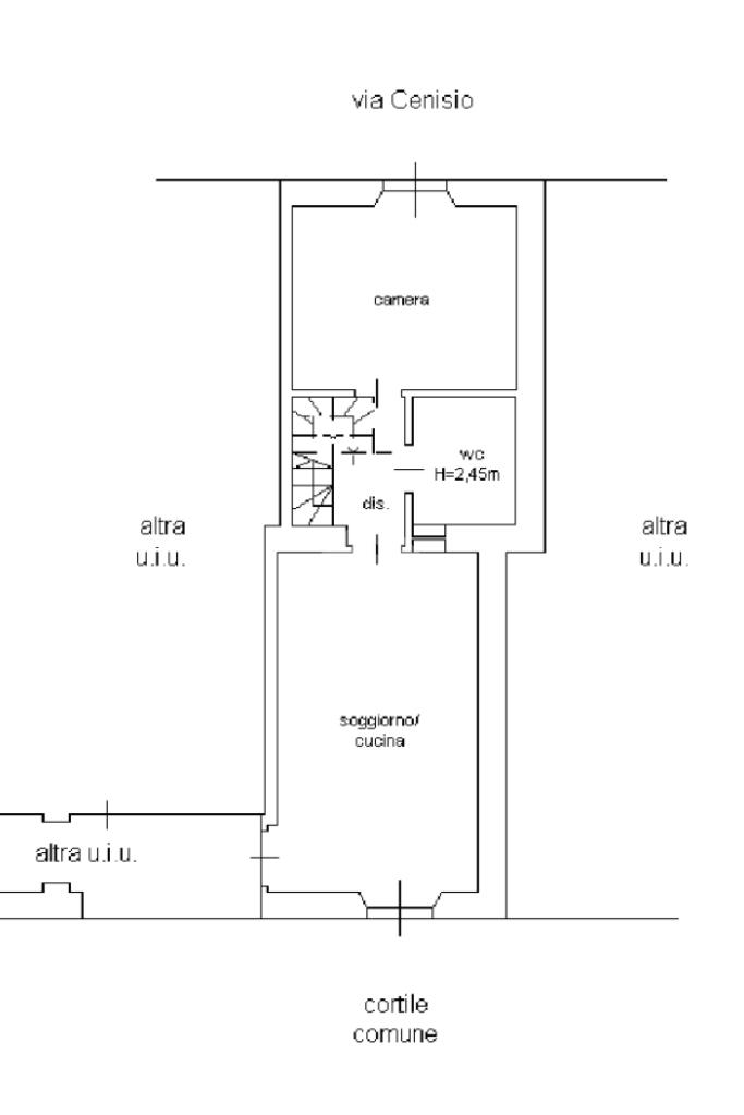
In via Cenisio, proponiamo in vendita un tre locali ristrutturato e arredato, con doppi servizi.

L’unità immobiliare è inserita in un edificio residenziale di impronta signorile, caratterizzato da un impianto distributivo ordinato e da spazi comuni ben dimensionati.

La proprietà è disposta su due livelli, piano 4 e 5, ed è stata oggetto di una totale ristrutturazione.

L’accesso all’immobile è servito da ascensore, e lo stabile dispone di servizio di portineria, elementi che garantiscono comfort, riservatezza e un’elevata qualità abitativa. La doppia esposizione e l’elevazione del piano, garantiscono un’ottima esposizione e un’elevata luminosità naturale durante l’arco della giornata, oltre a una ventilazione efficace degli ambienti. I locali di servizio risultano correttamente dimensionati e posizionati in modo strategico rispetto alla distribuzione generale, mentre gli ambienti principali offrono metrature idonee a una residenza di livello. La proprietà rappresenta una soluzione abitativa di pregio.

Mostra tutto

Nelle vicinanze

Trasporto pubblico Trasporto pubblico
Gerusalemme
Gerusalemme
320 m
Cenisio
Cenisio
400 m
stazione di Milano Lancetti
stazione di Milano Lancetti
1,0 Km
Milano Porta Garibaldi passante
Milano Porta Garibaldi passante
1,6 Km
Via Censio - Via Induno
Via Censio - Via Induno
80 m
Ricariche auto elettriche Ricariche auto elettriche
Una Hotel Scandinavia
320 m
BECHARGE Milano Salvioni
540 m
AUTORIMESSA SEMPIONE 76
580 m
Green Park
640 m
Enterprise Hotel, Design Hotel & Congress Centre
780 m
Scuole Scuole
Istituto Regina Carmeli
250 m
Scuola Secondaria di Primo Grado Moscati-Mameli
350 m
Scuola primaria Ferrante Aporti
440 m
Scuola Primaria Piero Moscati Bianca Maria Sforza
900 m
Liceo scientifico Francesco Severi
970 m
Farmacia Farmacia
Cenisio
60 m
Farmacia Comunale
240 m
Mac Mahon
350 m
Caneva
430 m
Farmacia Castelvetro
460 m
Ospedali Ospedali
Ospedale dei Bambini "Vittore Buzzi"
160 m
Istituto Clinico Sant'Ambrogio
1,1 Km
Poliambulatorio Cesare Pozzo
1,4 Km
Ospedale FieraMilano
1,4 Km
Clinica Columbus
1,9 Km
Supermercati Supermercati
Carrefour Market
100 m
Pam local
230 m
Esselunga
260 m
Sma Auchan
560 m
Coop
820 m
Negozi Negozi
Farfollie
60 m
Angelo baby
90 m
Pane e Capricci
250 m
Negozi
360 m
Stefany
360 m
Bar Bar
Milano Coffee Bar
60 m
Club Decò
80 m
Neroscuro
210 m
Bar Dada
220 m
Il Caffè di Via Fauche'
300 m
Ristoranti Ristoranti
Kyo
20 m
Pizzeria Spontini
20 m
Usaghi
170 m
Ristorante Pizzeria Al Borgo
170 m
Rifugio Delicatessen
180 m
Mostra tutto

Caratteristiche

Rif.:
61189144
Piano:
4 di 5 con ascensore (ultimo Piano)
Camere da letto:
2
Arredamento:
Completo
Condizionamento:
Autonomo
Ascensore:
Mostra tutto
Prezzo Prezzo
€ 580.000
Rata mutuo Rata mutuo
€ 2.749 / mese
Spese annue Spese annue
€ 1.850
Proponi il tuo prezzoProponi il tuo prezzo

Classe Energetica

D
D
D
D
D
D
D
D
D
EP globale non rinnovabile:
140.50 kW h/m² anno
EP globale rinnovabile:
1.46 kW h/m² anno
EP invernale del fabbricato:
EP estiva del fabbricato:
Anno di costruzione:
1930
Riscaldamento:
Autonomo
Tipo impianto:
A pavimento
Tipo alimentazione:
Metano

Prezzo ridotto di €1 (3%%)

Ti interessa visionare l'immobile?

Fissa un appuntamento  Fissa un appuntamento

Richiedi informazioni

Clicca su Leggi per aprire l'informativa
* Questi campi sono obbligatori

Calcola il tuo mutuo

Semplice e senza impegno
Anticipo

( % )
Mutuo

( % )

pochi semplici passi

inserisci i tuoi dati
Questionario completato
Grazie per aver richiesto un appuntamento senza impegno con un nostro Consulente del Credito e Assicurativo.

Hai inserito correttamente tutti i dati necessari e a breve riceverai una e-mail con un link da convalidare per inviare i tuoi dati.
Affiliato
Immobiliare Mi.ca Sas
Via Albertini, 2 20154 Milano (MI)

Il nostro staff


  • Simona Brunelli
    Coordinatrice

  • Rosanna Catalano
    Coordinatrice

  • Flavio Giacalone
    Affiliato

  • Davide Benedetto Ernesto Miceli
    Responsabile

  • Patrick Paul Mora Carrion
    Collaboratore
Via Albertini, 2 20154 Milano (MI)
Zona: Canonica - Sarpi
Mostra su mappa
Orari: lunedì - venerdì 09.00 - 13.00 / 14.30 - 20.00 sabato 09.30 - 13.00
Affiliato
Immobiliare Mi.ca Sas
Via Albertini, 2 20154 Milano (MI)

2026 Tecnocasa Franchising S.p.A. - P. IVA 08365160152 - Via Monte Bianco 60/A 20089 Rozzano (MI). Ogni agenzia ha un proprio titolare ed è autonoma. Privacy policy | Policy utilizzo | Cookie policy